500KW康明斯发电机KTAA19-G6A散热器技术参数
2019-11-15
    
    
      来源: 必威中文官网电话电力              
    
    105316
  柴油发电机组散热器是发电机组配备中不可缺少的重要部件之一,承当给柴油发电机组作业负载时产生的热量热量散入大气以降低冷却水的温度,散热器必须有足够的散热面积,并用导热性好的材料制造。维护好发电机组散热器也是一项不可忽视的重要工作。
betway西汉姆联官方网站电力设备制造有限公司生产的康明斯发电机组均采用重庆康明斯发动机有限公司的柴油机配套全铜无刷发电机配套而成的发电机组。我公司的柴油发电机组功率30-3000KW,有玉柴、上柴、潍柴、康明斯、沃尔沃品牌众多,可针对不同不同需求、不同工况进行设计制造柴油发电机组,以充分满足客户多样化的电力需求。以下为必威中文官网电话电.力的康明发电机组KTAA19-G6散热器出厂检验报告。
康明发电机组KTAA19-G6散热器出厂检验报告
柴油机生产厂家:重庆康明斯发动机有限公司
配机型号:KTAA19-G6/KTAA19-G6A(40℃、50HZ)
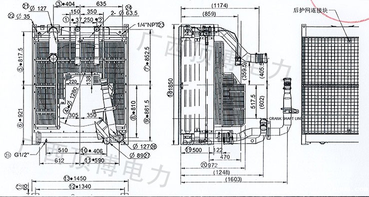
500KW康明斯发电机组KTAA19-G6散热器构造图

 
 
500KW康明斯发电机组KTAA19-G6散热器外观质量
| 检验项目 | 检验要求 | 检验结果符合要求 (OK) | 结果判断 (Y/N) | 
| 散热芯子外观 | 1.散热片片距均匀,不允许两片压合在一起,无倒伏破裂 | OK | Y | 
| 2.散热管无弯曲变形和损伤 | OK | Y | |
| 3.散热片片距均匀,不允许两片压合在一起。 | OK | Y | |
| 芯子油漆和表面涂层 | 1.总成按图纸及客户要求涂漆。 2.芯子油漆均匀,无脱落和起皮 3、散热器表面涂层无明显划伤、脱落和锈蚀 | OK | Y | 
| 散热器表面 | 1.散热器外表面应干净整洁,无灰尘和污迹。 2.散热器内腔无流动的固体杂质, 3.散热器的进出口有防尘盖 4、焊缝无凹凸不平和焊料堆积,周边无焊渣飞溅 | OK | Y | 
| 5、散热器外表防腐层应均匀美观、不允许有凹凸不平、起泡、桔皮纹及涂层脱落等缺陷。(必威中文官网电话电力) | OK | Y | |
| 附件安装 | 1、水箱盖与加水口座装配自如无变形,开启压力符合图纸要求 | OK | Y | 
| 2、蒸汽导出管长度及材质符合图纸要求,外观完好无破损 | OK | Y | |
| 3、补水管胶管卡箍等安装位置正确,紧固情况目测良好 | OK | Y | |
| 螺栓紧固情况 | 1.传动件紧固件扭力符合扭力工艺表 2.连接用紧固件紧固完成 | OK | Y | 
| 康明发电机组KTAA19-G6散热器标志及包装 | |||
| 产品铭牌 | 具体内容及粘贴位置符合产品图样要求。 | OK | Y | 
| 配管及随机零配件 | 按装箱清单清点,实物齐全,与装箱清单相符合 | OK | Y | 
| 随机文件: | 装箱清单、 产品合格证、使用说明书等随机文件规范齐全 | OK | Y | 
| 包装箱要求 | 包装箱尺寸及结构按包装规范执行, 标识内容及要求按产品图样要求。 | OK | Y | 
//www.zgyus.com
 报价:13667715899
	报价:13667715899	 
      推荐文章
- 选购发电机组,请认准必威中文官网电话,备用电源的“终极方案”! 2025-10-24
- 发电机组也支持远程遥控?智能时代的产品就是强! 2025-10-23
- 必威中文官网电话智能发电机组:让电力管理迈入"云时代"的智慧之选 2025-10-22
- 选购发电机组,就选必威中文官网电话智能发电机组!为什么?就因为它够智能 2025-10-22
- 预算有限怎么选智能柴油发电机组?必威中文官网电话这三款超高性价比机组最适合你 2025-10-21
- 买发电机追求智能化?必威中文官网电话这三款柴油发电机组性价比超高! 2025-10-20
- 为生命保驾护航:必威中文官网电话智能发电机组,医院备用电源系统的优选解决方案 2025-10-18
- 医院断电危机?就选必威中文官网电话智能发电机组,10秒守护生命安全! 2025-10-18
- 智能发电机组在小区物业的应用:停电零延迟切换保安全 2025-10-17
- 迈向“主动智能”:必威中文官网电话智能发电机组,“一屏掌控”全局,重新定义工地备用电源新标准 2025-10-16
 
      




 桂公网安备45010702002247
 桂公网安备45010702002247